搜索关键词:
产品名称,产品种类,型号,
测试标准或规范,生产商,技术种类,应用等等

YY/T 0471.1-2004透湿杯
返回
分享到
依据标准:YY/T 0471.1-2004 吸透量 标准3.3试验

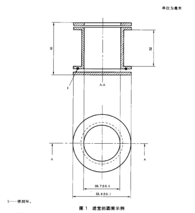
圆筒由耐腐蚀材料(不锈钢)制造,内径为(35.7±0.1)mm(截面积为10cm2),两端各有一凸缘,每只能装20mL试验液。
圆筒的一端是一个环形的夹板,开孔面积为10cm2,为防止通过敷料的边缘散发,该区域内可使用一个阻水带或密封剂,圆筒的另一端,是一直径与凸缘直径相等的金属盖板,并有一密封环,以确保与凸缘有效密封,盖板的两端与凸缘夹紧。




